Hallo zusammen
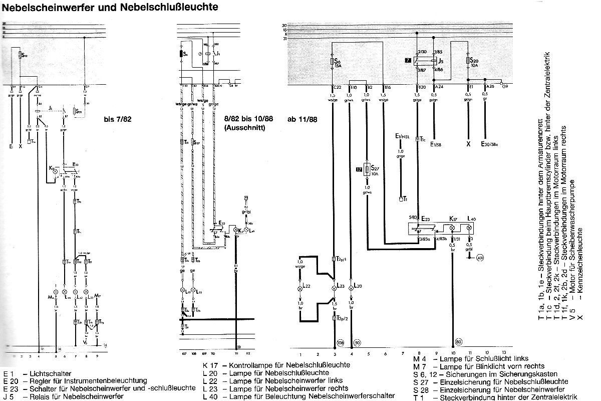
Sehe ich es richtig, dass das Relais mit der Sicherung oben drauf (1982er alte Zentralelektrik) schliesst sobald man das Licht einschaltet. Bei der neuen Zentralelektrik hat es auch ein Relais, welches ebenfalls schliesst bei Licht an.
Schaltet man dann die Nebelscheinwerfer ein, schliesst der Schalter dann den Stromkreis wie Ausgang am Relais und schliesst nicht Stromkreis für die Spule des Relais.
Vom Golf, aber eigentlich egal, war ja sowieso immer etwa gleich. Der Strom für die Nebelscheinwerfer fliesst immer via Schalter.
Gruss
tomix
